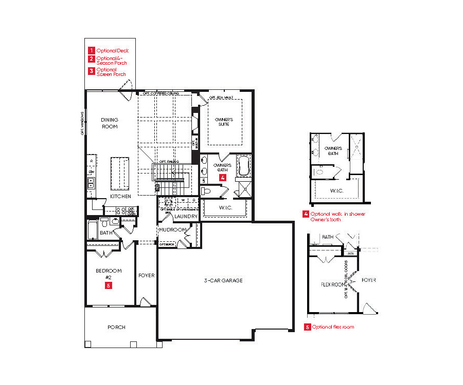
Regent Floorplan

Home Features

Evanswood | Huntersbrook | Watercrest of Hugo | Waypointe of Woodbury | Build on Your Lot

  • Modern cottage elevation with inviting full front porch with columns and stone accents
  • LP SmartSide® prefinished siding with 4-sided architectural detail, including wrapped windows and trim boards
  • 2 bedrooms and 2 full baths on main level
  • Dramatic 12’ ceiling in gathering room with wall of windows and optional coffered ceiling
  • Open transitional kitchen with custom cabinetry, window over sink, oversized center island, and spacious pantry
  • Open dining with windows and door to optional four-season porch, screen porch, deck or patio
  • Convenient main level laundry and mudroom
  • Optional flex room in lieu of bedroom on main level
  • Optional large walk-in shower at owner’s bath
  • Tranquil main level owner’s retreat with spa bath includes double vanity, soaking tub, separate shower, private water closet and spacious walk-in closet
  • Finished open staircase to lower level with mechanicals and abundant storage
  • Optional finished lower level with family room, bedroom, bathroom, and storage space
  • Optional wet bar with lower level finish
  • Optional 4th bedroom in lower level

2-4 Beds

2-3 Baths

3 Car Garage

1689-2996 Sq. Ft.

Regent Floorplan

community-highlight-sm
community-highlight-lg

Homes designed to be uniquely yours.

We build our homes in carefully selected and planned suburban communities around the Twin Cities metro. These new home construction sites integrate the beauty and peace of nature into functional, friendly neighborhoods designed for front porch living. Meet your neighbors at community pools and parks while enjoying easy access to urban amenities, major roads, and stellar school districts.

EXPLORE AVAILABLE HOMES

Your new home is waiting. Let’s build it together.

Exclusive Financing: 4.99%